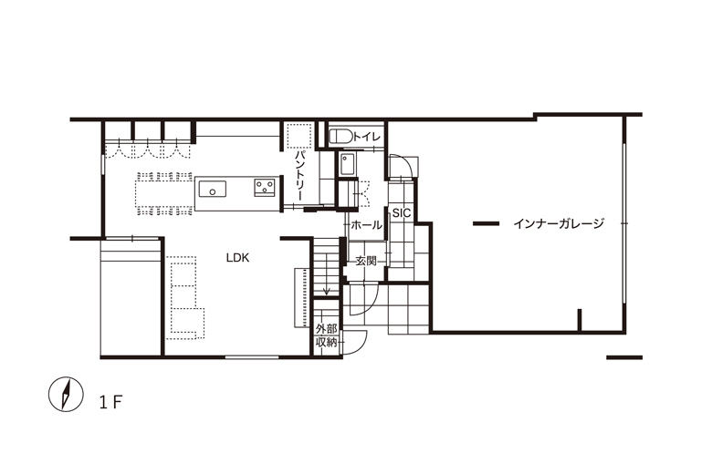
インナーガレージ×自然を感じる開放的なリビング|十日町市|F様邸
オーバースライダーの電動シャッターで重厚感のあるインナーガレージは外部収納も兼ねて広々した設計に。
内観はグレーを基調としてシンプルにまとめ、飽きのこないデザインに。
22帖のLDKには吹抜けを設け、緑豊かな景色を切り取る大開口の窓を配置。心地よい開放感に包まれる空間に仕上げた。
キッチンには、カップボード横の壁面収納、背面収納、大容量パントリーを兼ね備え、使い勝手と収納力を両立。
2階にはそれぞれの収納スペースを区切った大容量WICも設計。
各居室とキッチン以外の水回りは2階に設けることで、建物全体のバランスを保ちながら、お施主様の暮らしに合った家事ラク動線を実現。
・延床面積:39.0坪
・敷地面積:81.5坪
【間取り】

#管理番号:8458471
#シンプルモダン #ナチュラルモダン #インナーガレージ #コンクリート #家事がラク #子育てしやすい #共働き世帯に配慮 #収納充実 #料理を楽しむ #こだわりの外観デザイン #こだわりの内観デザイン #建築家と建てた家 #おしゃれ #開放感 #重厚感 #落ち着き #かっこいい #クール #ハイセンス #オープンLDK #吹抜け #リビング階段 #土間 #大開口 #インナーガレージ #書斎 #アイランドカウンター #アクセントウォール #エントリークローゼット #リビング収納 #ワークスペース #24時間換気システム #子供部屋 #ニッチ #DEN(デン) #オーバーハング #オープンキッチン #ウォークインクロゼット #シューズインクロゼット #パントリー #ビルトインガレージ #ガレージ車庫 #高気密・高断熱住宅 #Nearly ZEH住宅 #耐震・免震・制震住宅 #省エネ住宅 #オール電化住宅 #高耐火 #通風・採光 #防犯対策
OPEN HOUSE ディテールホームの見学会・イベント情報
-
新潟市西区|11.8(土)~9(日)
![■当日予約歓迎■新潟市西区|アプローチテラスが繋ぎ、照明計画と緑の借景で寛ぐ、ブラックガルバの住まい|完成見学会【予約制】]()
■当日予約歓迎■新潟市西区|アプローチテラスが繋ぎ、照明計画と緑の借景で寛ぐ、ブラックガルバの住まい|完成見学会【予約制】
日程:2025.11.8(土)~9(日) 10:00〜18:00
会場:新潟市西区坂井 -
阿賀野市|11.8(土)~9(日)
![≪グランドオープン≫阿賀野市姥ケ橋モデルハウス|のどかさと楽しさが共存する、リズムに富んだダブルテラスのある暮らし【予約制】]()
≪グランドオープン≫阿賀野市姥ケ橋モデルハウス|のどかさと楽しさが共存する、リズムに富んだダブルテラスのある暮らし【予約制】
日程:2025.11.8(土)~9(日) 10:00〜18:00
会場:阿賀野市姥ケ橋 -
三条市|11.8(土)~9(日)
![■当日予約歓迎■三条市|テラスを囲むLDKの開放感、快適な動線設計の住まい|完成見学会【予約制】]()
■当日予約歓迎■三条市|テラスを囲むLDKの開放感、快適な動線設計の住まい|完成見学会【予約制】
日程:2025.11.8(土)~9(日) 10:00〜18:00
会場:三条市三竹 -
長岡市|11.8(土)~9(日)
![■当日予約歓迎■長岡市|プライベートテラスでととのう、サウナができるヴィラのような家|モデルハウス見学会【予約制】]()
■当日予約歓迎■長岡市|プライベートテラスでととのう、サウナができるヴィラのような家|モデルハウス見学会【予約制】
日程:2025.11.8(土)~9(日) 10:00〜18:00
会場:長岡市江陽 -
柏崎市|11.8(土)~9(日)
![■当日予約歓迎■柏崎市|好きなものに囲まれて暮らすプライベートガーデンのある家|完成見学会【予約制】]()
■当日予約歓迎■柏崎市|好きなものに囲まれて暮らすプライベートガーデンのある家|完成見学会【予約制】
日程:2025.11.8(土)~9(日) 10:00〜18:00
会場:柏崎市小倉町 -
新潟市秋葉区|11.15(土)~16(日)
![新潟市秋葉区|造作家具とおこもり空間が紡ぐ自由な暮らし|完成見学会【予約制】]()
新潟市秋葉区|造作家具とおこもり空間が紡ぐ自由な暮らし|完成見学会【予約制】
日程:2025.11.15(土)~16(日) 10:00〜18:00
会場:新潟市秋葉区程島 -
新発田市|11.15(土)~16(日)
![≪グランドオープン≫新発田市御幸町モデルハウス|灯りが描くホテルライク空間【予約制】]()
≪グランドオープン≫新発田市御幸町モデルハウス|灯りが描くホテルライク空間【予約制】
日程:2025.11.15(土)~16(日) 10:00〜18:00
会場:新発田市御幸町 -
燕市|11.15(土)~16(日)
![燕市|前庭と斜め壁がもてなす、アプローチのある住まい|完成見学会【予約制】]()
燕市|前庭と斜め壁がもてなす、アプローチのある住まい|完成見学会【予約制】
日程:2025.11.15(土)~16(日) 10:00〜18:00
会場:燕市東太田 -
上越市|11.15(土)~16(日)
![上越市|中庭をコの字で囲む、パブリックとプライベートを両立する暮らし|モデルハウス販売会【予約制】]()
上越市|中庭をコの字で囲む、パブリックとプライベートを両立する暮らし|モデルハウス販売会【予約制】
日程:2025.11.15(土)~16(日) 10:00〜18:00
会場:上越市大和 -
新潟市東区|11.22(土)~23(日)
![≪最終見学会≫新潟市東区白銀モデルハウス|オークの挽板と吹き抜けが魅せる~L型間取りとL型キッチン~【予約制】]()
≪最終見学会≫新潟市東区白銀モデルハウス|オークの挽板と吹き抜けが魅せる~L型間取りとL型キッチン~【予約制】
日程:2025.11.22(土)~23(日) 10:00〜18:00
会場:新潟市東区白銀

