長岡市幸町3丁目
販売価格(税込) 家具付き 4,730万円
- 所在地
- 長岡市幸町3丁目6-30
- 交通
- 越後交通バス「宮原1丁目」:徒歩10分
JR信越本線「長岡」:徒歩28分
- 学区
- 長岡市立千手小学校:徒歩12分(850m)
長岡市立南中学校:徒歩15分(1100m)
- 地目
- 宅地
- 用途地域
- 第一種住居地域
- 建ぺい率
- 60%
- 容積率
- 200%
- 道路
- 長岡市道 幅員16m
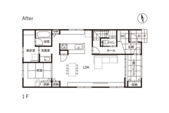
- 間取り
- 4LDK
- 土地面積
- 188.00㎡(56.87坪)
- 建物面積
- 123.09㎡(37.23坪)
- 完成時期
- 2025年4月
- 構造
- 木造2階建て
- 電力
- 東北電力
- 水道
- 公営水道、本下水
- ガス
- 都市ガス
- 取引態様
- 所有権
- その他
- リノベーション物件
新築年月日:昭和53年10月31日
- 担当者から一言
- 長岡花火が家から見えることや、会場へも徒歩で行けるのが魅力の立地。
保育園、小学校、中学校へも徒歩圏内で安心の立地。
長岡駅も徒歩圏内と、何をするにもアクセス抜群。
耐震・断熱改修したフルリノベーションの新築同等に見える建物です。
周辺データ
-
原信シビックコア店:徒歩16分(1100m)
-
ウオロク長岡店徒歩:21分(1700m)
-
長岡市立科学博物館:徒歩5分(450m)
-
長岡市立劇場:徒歩5分(350m)
-
長岡IC:車11分(6500m)
-
南部保育園:徒歩14分(1400m)
建売住宅 来場予約フォーム
OPEN HOUSE ディテールホームの見学会・イベント情報
-
新潟市東区|12.13(土)~14(日)
![新潟市東区|インナーガレージと中庭のあるL型プランの家|完成見学会【予約制】]()
新潟市東区|インナーガレージと中庭のあるL型プランの家|完成見学会【予約制】
日程:2025.12.13(土)~14(日) 10:00〜18:00
会場:新潟市東区新石山 -
三条市|12.13(土)~14(日)
![三条市|木の温もりが調和する、見せ梁が映えるモスグリーンの家|完成見学会【予約制】]()
三条市|木の温もりが調和する、見せ梁が映えるモスグリーンの家|完成見学会【予約制】
日程:2025.12.13(土)~14(日) 10:00〜18:00
会場:三条市塚野目 -
長岡市|12.13(土)~14(日)
![長岡市|キッチンを中心に、家事ラク回遊動線と充実収納を備えた住まい|完成見学会【予約制】]()
長岡市|キッチンを中心に、家事ラク回遊動線と充実収納を備えた住まい|完成見学会【予約制】
日程:2025.12.13(土)~14(日) 10:00〜18:00
会場:長岡市蔵王 -
見附市|12.13(土)~14(日)
![見附市|深い軒と明るい空間が生む、開放感と機能美の家|完成見学会【予約制】]()
見附市|深い軒と明るい空間が生む、開放感と機能美の家|完成見学会【予約制】
日程:2025.12.13(土)~14(日) 10:00〜18:00
会場:見附市学校町 -
上越市|12.13(土)~14(日)
![上越市|中庭をコの字で囲む、パブリックとプライベートを両立する暮らし|モデルハウス見学会【予約制】]()
上越市|中庭をコの字で囲む、パブリックとプライベートを両立する暮らし|モデルハウス見学会【予約制】
日程:2025.12.13(土)~14(日) 10:00〜18:00
会場:上越市大和 -
新潟市西区|12.20(土)~21(日)
![新潟市西区|アウターリビングのある1.5階建ての家|モデルハウス見学会【予約制】]()
新潟市西区|アウターリビングのある1.5階建ての家|モデルハウス見学会【予約制】
日程:2025.12.20(土)~21(日) 10:00〜18:00
会場:新潟市西区大野町 -
新発田市|12.20(土)~21(日)
![新発田市|灯りが描くホテルライク空間|モデルハウス見学会【予約制】]()
新発田市|灯りが描くホテルライク空間|モデルハウス見学会【予約制】
日程:2025.12.20(土)~21(日) 10:00〜18:00
会場:新発田市御幸町 -
三条市|12.20(土)~21(日)
![三条市|明るい大開口リビング×家事ラク動線の快適な暮らし|完成見学会【予約制】]()
三条市|明るい大開口リビング×家事ラク動線の快適な暮らし|完成見学会【予約制】
日程:2025.12.20(土)~21(日) 10:00〜18:00
会場:三条市千把野新田 -
上越市|12.20(土)~21(日)
![上越市|吹抜けと意匠階段を中心に集いつながる住まい|完成見学会【予約制】]()
上越市|吹抜けと意匠階段を中心に集いつながる住まい|完成見学会【予約制】
日程:2025.12.20(土)~21(日) 10:00〜18:00
会場:上越市春日新田 -
![お近くの店舗にて開催!「家づくり無料相談会」 家づくりのはじめの一歩はここから【予約制】]()
お近くの店舗にて開催!「家づくり無料相談会」 家づくりのはじめの一歩はここから【予約制】
日程:毎日公開中!(火・水定休)
会場:各店舗にてご希望を承ります

