新潟市中央区親松
販売価格(税込) 家具付き 3,700万円
- 所在地
- 新潟市中央区親松560-104
- 交通
- JR越後線「関屋」:徒歩60分
越後交通高速バス「中央インター前」:徒歩14分
- 学区
- 新潟市立鳥屋野小学校:徒歩15分(1500m)
新潟市立上山中学校:徒歩30分(2100m)
- 地目
- 宅地
- 用途地域
- 第二種中高層住居専用地域
- 建ぺい率
- 60%
- 容積率
- 200%
- 道路
- 開発道路 新潟県指令 新土 第773号(私道)幅員5.7m~5.81m
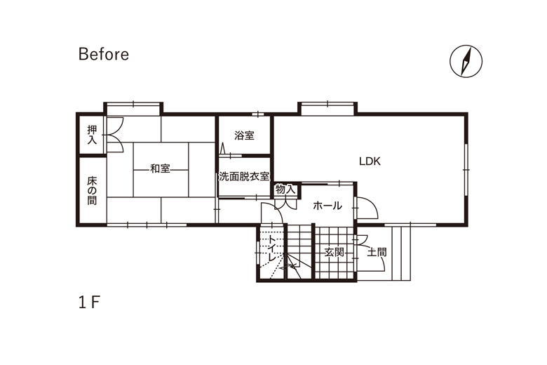
- 間取り
- 3LDK
- 土地面積
- 132.23㎡(40坪)
- 建物面積
- 91.49㎡(27.67坪)
- 完成時期
- 2025年4月
- 構造
- 木造2階建て
- 電力
- 東北電力
- 水道
- 公営水道、本下水
- ガス
- 都市ガス
- 取引態様
- 所有権
- その他
- リノベーション物件
新築年月日:昭和63年7月10日
- 担当者から一言
- 高速新潟中央インター、女池インターそれぞれ車で5分という通勤やどこへ行くのもアクセスしやすい立地。
幼稚園も近く閑静な住宅街なので子育てしやすいエリアです。
フルリノベーションで新築みたいな家なのにお求めやすい価格。
周辺データ
-
チャレンジャー新潟中央インター店:徒歩13分(10m)
-
新潟市民病院:徒歩20分(1500m)
-
鳥屋野公園:徒歩20分(1500m)
-
新潟中央インター:車5分(2000m)
-
女池インター:車5分(1700m)
-
親松幼稚園:徒歩4分(300m)
建売住宅 来場予約フォーム
OPEN HOUSE ディテールホームの見学会・イベント情報
-
新潟市中央区|4.25(土)~26(日)
![新潟市中央区|洞窟アプローチから、光差す吹き抜けダイニングへ|モデルハウス見学会]()
新潟市中央区|洞窟アプローチから、光差す吹き抜けダイニングへ|モデルハウス見学会
日程:2026.4.25(土)~26(日) 10:00〜18:00
会場:新潟市中央区美の里 -
新発田市|4.25(土)~26(日)
![■当日予約歓迎■新発田市|トータルコーディネートされた、上質でカーテンのいらない暮らし|モデルハウス見学会【予約制】]()
■当日予約歓迎■新発田市|トータルコーディネートされた、上質でカーテンのいらない暮らし|モデルハウス見学会【予約制】
日程:2026.4.25(土)~26(日) 10:00〜18:00
会場:新発田市住吉町 -
燕市|4.25(土)~26(日)
![■当日予約歓迎■燕市|夜風と一杯を愉しむ、プライベートテラスのある家|完成見学会【予約制】]()
■当日予約歓迎■燕市|夜風と一杯を愉しむ、プライベートテラスのある家|完成見学会【予約制】
日程:2026.4.25(土)13:00~18:00、26(日) 10:00〜18:00
会場:燕市小池 -
長岡市|5.2(土)~3(日)
![≪プレオープン≫長岡市大島新町モデルハウス|上質な素材美を愉しむ、ガレージとインナーテラスのある邸宅【予約制】]()
≪プレオープン≫長岡市大島新町モデルハウス|上質な素材美を愉しむ、ガレージとインナーテラスのある邸宅【予約制】
日程:2026.5.2(土)~3(日) 10:00〜18:00
会場:長岡市大島新町 -
長岡市|5.2(土)~3(日)
![長岡市|1階完結で暮らす、開放感のあるコンパクトSEの家|完成見学会【予約制】]()
長岡市|1階完結で暮らす、開放感のあるコンパクトSEの家|完成見学会【予約制】
日程:2026.5.2(土)~3(日) 10:00〜18:00
会場:長岡市関原町 -
新潟市西区|5.9(土)~10(日)
![新潟市西区|アウターリビングのある1.5階建ての家|モデルハウス見学会]()
新潟市西区|アウターリビングのある1.5階建ての家|モデルハウス見学会
日程:2026.5.9(土)~10(日) 10:00〜18:00
会場:新潟市西区大野町 -
新発田市|5.9(土)~10(日)
![新発田市|平屋のように暮らす、中庭と回遊動線のあるナチュラルレジデンス|モデルハウス見学会【予約制】]()
新発田市|平屋のように暮らす、中庭と回遊動線のあるナチュラルレジデンス|モデルハウス見学会【予約制】
日程:2026.5.9(土)~10(日) 10:00〜18:00
会場:新発田市西園町 -
燕市|5.9(土)~10(日)
![燕市|付加断熱×太陽光で叶える、ぬくもりと安心の暮らし|完成見学会【予約制】]()
燕市|付加断熱×太陽光で叶える、ぬくもりと安心の暮らし|完成見学会【予約制】
日程:2026.5.9(土)~10(日) 10:00〜18:00
会場:燕市吉田 -
長岡市|5.9(土)~10(日)
![長岡市|1階完結で暮らす、開放感のあるコンパクトSEの家|完成見学会【予約制】]()
長岡市|1階完結で暮らす、開放感のあるコンパクトSEの家|完成見学会【予約制】
日程:2026.5.9(土)~10(日) 10:00〜18:00
会場:長岡市関原町 -
長岡市|5.9(土)~10(日)
![長岡市|バイクガレージとタイルテラスを備えた、SE構法の住まい|完成見学会【予約制】]()
長岡市|バイクガレージとタイルテラスを備えた、SE構法の住まい|完成見学会【予約制】
日程:2026.5.9(土)~10(日) 10:00〜18:00
会場:長岡市中之島

