fbpx

見学会・イベント

OPEN HOUSE

【開催終了】新潟市西区|坂井モデルハウス販売会 – KAJIRAKU NATURAL case 18. – [2019-02]

ディテール彩

今回は新潟で一番ご要望が多い33-34坪のリアルサイズを建築しました。
 

狭小地が多い新潟市内に合わせ、コンパクトなのにKAJIRAKU設計な彩のお家を是非ご体感ください。
 

土地・建物本体・制振装置・造作テレビボード・エアコンなどなど、全てコミコミの価格で販売致します。
 

・延床面積:32.1坪
・敷地面積:47.6坪

 

※ご予約不要でご自由にご覧いただけます。
※ご来場予約いただいた方には特典を差し上げております。
 

▼販売価格

3,150万円(税込)
 
<土地 + 建物本体 + 外構 + 造作テレビボード + 造作洗面化粧台 + 造作食器棚 + 食洗器 + トリプルガラスサッシ + エアコン2台 + カーテン + 壁面タイル + 照明 + オール電化 + 屋外給排水 + 瑕疵担保保険 + 申請費用 + 消費税 含む>
※住宅ローン・登記費用などの諸経費は含まれておりません。
 

▼月々の返済例

84,940円/月
※返済期間:35年/変動金利:0.725%
 

▼交通・周辺環境

・JR越後線「寺尾駅」・・・徒歩約15分
・坂井輪幼稚園・・・徒歩約8分
・新潟市立坂井東小学校・・・徒歩約15分
・新潟市立坂井輪中学校・・・徒歩約15分
・セブンイレブン新潟坂井東店・・・徒歩約5分

新潟市西区|坂井モデルハウス販売会 – KAJIRAKU NATURAL case 18. – [2019-02]

白のガルバリウム鋼板に木のやわらかさが加わった外観デザイン

新潟市西区|坂井モデルハウス販売会 – KAJIRAKU NATURAL case 18. – [2019-02]
新潟市西区|坂井モデルハウス販売会 – KAJIRAKU NATURAL case 18. – [2019-02]

玄関にはコート掛けのあるシューズクロークを設置

新潟市西区|坂井モデルハウス販売会 – KAJIRAKU NATURAL case 18. – [2019-02]

黄色い壁紙がアクセントになったリビングスペース。南面の掃き出し窓から明るい光が差し込む

新潟市西区|坂井モデルハウス販売会 – KAJIRAKU NATURAL case 18. – [2019-02]

家の形に切り取った開口部が目を引くナチュラルテイストのLDK

新潟市西区|坂井モデルハウス販売会 – KAJIRAKU NATURAL case 18. – [2019-02]

LDKの一角には小上がりの畳スペース。窓際にはカウンターと飾り棚を造作

新潟市西区|坂井モデルハウス販売会 – KAJIRAKU NATURAL case 18. – [2019-02]
新潟市西区|坂井モデルハウス販売会 – KAJIRAKU NATURAL case 18. – [2019-02]
新潟市西区|坂井モデルハウス販売会 – KAJIRAKU NATURAL case 18. – [2019-02]
新潟市西区|坂井モデルハウス販売会 – KAJIRAKU NATURAL case 18. – [2019-02]

タイルと木目が美しく調和するキッチンスペース

新潟市西区|坂井モデルハウス販売会 – KAJIRAKU NATURAL case 18. – [2019-02]
新潟市西区|坂井モデルハウス販売会 – KAJIRAKU NATURAL case 18. – [2019-02]

洗面室と脱衣室を分離。お泊りのゲストがいても気にせず使える

新潟市西区|坂井モデルハウス販売会 – KAJIRAKU NATURAL case 18. – [2019-02]

共働きに便利なランドリールーム。空色の壁紙がポイントに

新潟市西区|坂井モデルハウス販売会 – KAJIRAKU NATURAL case 18. – [2019-02]

床にウォールナットを採用した主寝室

新潟市西区|坂井モデルハウス販売会 – KAJIRAKU NATURAL case 18. – [2019-02]
新潟市西区|坂井モデルハウス販売会 – KAJIRAKU NATURAL case 18. – [2019-02]

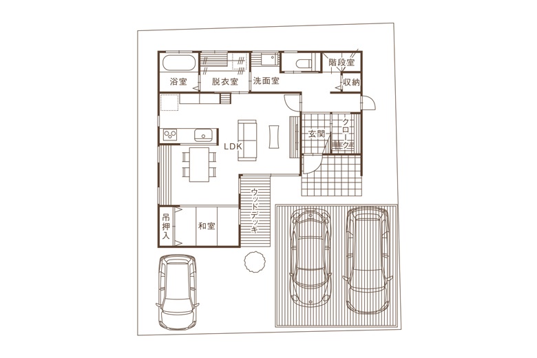
1階の間取り

新潟市西区|坂井モデルハウス販売会 – KAJIRAKU NATURAL case 18. – [2019-02]

2階の間取り

新潟市西区|坂井モデルハウス販売会 – KAJIRAKU NATURAL case 18. – [2019-02] 新潟市西区|坂井モデルハウス販売会 – KAJIRAKU NATURAL case 18. – [2019-02] 新潟市西区|坂井モデルハウス販売会 – KAJIRAKU NATURAL case 18. – [2019-02] 新潟市西区|坂井モデルハウス販売会 – KAJIRAKU NATURAL case 18. – [2019-02] 新潟市西区|坂井モデルハウス販売会 – KAJIRAKU NATURAL case 18. – [2019-02] 新潟市西区|坂井モデルハウス販売会 – KAJIRAKU NATURAL case 18. – [2019-02] 新潟市西区|坂井モデルハウス販売会 – KAJIRAKU NATURAL case 18. – [2019-02] 新潟市西区|坂井モデルハウス販売会 – KAJIRAKU NATURAL case 18. – [2019-02] 新潟市西区|坂井モデルハウス販売会 – KAJIRAKU NATURAL case 18. – [2019-02] 新潟市西区|坂井モデルハウス販売会 – KAJIRAKU NATURAL case 18. – [2019-02] 新潟市西区|坂井モデルハウス販売会 – KAJIRAKU NATURAL case 18. – [2019-02] 新潟市西区|坂井モデルハウス販売会 – KAJIRAKU NATURAL case 18. – [2019-02] 新潟市西区|坂井モデルハウス販売会 – KAJIRAKU NATURAL case 18. – [2019-02] 新潟市西区|坂井モデルハウス販売会 – KAJIRAKU NATURAL case 18. – [2019-02] 新潟市西区|坂井モデルハウス販売会 – KAJIRAKU NATURAL case 18. – [2019-02] 新潟市西区|坂井モデルハウス販売会 – KAJIRAKU NATURAL case 18. – [2019-02] 新潟市西区|坂井モデルハウス販売会 – KAJIRAKU NATURAL case 18. – [2019-02]
開催日時
2019.2.2(土)・2.3(日)
 10:00〜17:00
会場
新潟市西区坂井1丁目
お問い合わせ
0120-773-121(担当:ディテールホーム新潟)

会場:新潟市西区坂井1丁目

見学会・イベント 来場予約

    以下のフォームからご来場予約を受け付けております。 初めてご来場いただく方で当フォームからご来場予約いただけますと、ギフトカード500円分を郵送にてプレゼントいたします。 弊社からの予約確認、確定のご連絡をもって受付完了とさせていただきます。

    来場希望日の前日17時~当日のご来場予約については、弊社営業時間(9:00~18:00)内に、フリーダイヤル 0120-773-121 (担当:ディテールホーム新潟)までお電話いただきますようご協力をお願いいたします。
    過去に弊社担当者が応対させていただいたことがありましたら、担当の携帯電話宛までご連絡いただけますとご案内がスムーズに行えます。

    完成見学会
    新潟市西区|坂井モデルハウス販売会 – KAJIRAKU NATURAL case 18. – [2019-02]
    開催日時
    2019.2.2(土)・2.3(日) 10:00〜17:00
    ご希望日時(必須)
    お名前(必須)
    フリガナ(必須)
    郵便番号
    ご住所
    電話番号(必須)
    メールアドレス(必須)
    当イベントをどこでお知りになりましたか?(複数選択可)
    ”知人からの紹介”を選択された方へ、知人の方の氏名をお聞かせください。

    お問い合わせ内容・その他ご希望など
    お聞きになりたい点をご連絡いただければ、ご来場までにご要望にお応えできるよう準備させていただきます。

    注意事項

    弊社からの予約確認、確定のご連絡をもって受付完了とさせていただきます。 また、当日のご来場予約についてはお電話いただきますようご協力をお願いいたします。

    ■ 携帯メールアドレスのドメイン指定受信に関するお願い
    携帯メールのドメイン指定受信や、指定拒否をしている場合、当サイトからの予約完了通知などを受信できない場合があります。弊社ディテールホームからのメールは【@detail-home.com】もしくは【@sadh.jp】ドメインで配信しております。該当のドメインからのメールを受信いただけるよう設定願います。 *各キャリア、ご利用機種ごとの詳しい設定方法等は各キャリアへお問い合わせください。

    ■ 来場予約からプレゼントまでの流れ
    1. 当フォームからご予約いただきます。
    2. 当日ご来場いただきます。
    3. 弊社のアンケートにご記入いただきます。その際に住所のご記入をお願いいたします。
    4. 後日、弊社からプレゼントを郵送にてお送りさせていただきます。

    ■ その他、プレゼントに関する注意事項
    ・初めて弊社の見学会にご来場いただく方のみ対象とさせていだきます。
    ・これから住宅の建築やリフォームなどの工事をご検討されているお客様のみ対象とさせていただきます。
    ・プレゼントは、1名様(1家族様)1回限りとさせていただきます。
    ・過去に資料請求などでプレゼントさせていただいた方は対象外とさせていただきます。
    ・未成年者様のみのご来場は対象外とさせていただきます。
    ・弊社のアンケートにご協力していただくことが条件となります。

    ■ 個人情報の取り扱いについて
    ・ご入力いただきました情報は「プライバシーポリシー」に従って取り扱われます。

    OPEN HOUSE ディテールホームの見学会・イベント情報