新潟市中央区小張木1丁目
販売価格(税込) 家具付き 5,122万円
- 所在地
- 新潟市中央区小張木1丁目154番39
- 交通
- JR越後線「上所」:車11分
- 学区
- 新潟市立女池小学校:徒歩14分(1000m)
新潟市立鳥屋野中学校:徒歩26分(1800m)
- 地目
- 宅地
- 用途地域
- 第一種中高層地域
- 建ぺい率
- 60%
- 容積率
- 200%
- 道路
- 北6m幅(接道幅11.27m)
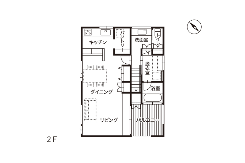
- 間取り
- 3LDK+S+バルコニー
- 土地面積
- 132.46㎡(40.06坪)
- 建物面積
- 111.47㎡(33.71坪)
- 完成時期
- 2025年10月
- 構造
- 木造2階建
- 電力
- 東北電力
- 水道
- 公営水道、本下水
- ガス
- 都市ガス
- 取引態様
- 所有権
- 担当者から一言
- 2Fリビングで採光抜群。
浴室とバルコニーとリビングスペースが回遊導線となっておりプライベートで非日常の高級ホテルのような空間に。
外構計画にも拘り植栽と間接照明が帰宅時に高揚できるようなアプローチ計画。
ソファ・ダイニングセット・TV・TVボード・センターテーブル・テントサウナ付(120万円相当)
周辺データ
-
とやの中央病院:車5分(1200m)
-
ウオロク女池店:車5分(1200m)
-
新潟県立新潟江南高等学校:徒歩14分(1000m)
-
鳥屋野交通公園:徒歩7分(550m)
-
新潟市立女池小学校:徒歩14分(1000m)
-
新潟市立鳥屋野中学校:徒歩26分(1800m)
建売住宅 来場予約フォーム
OPEN HOUSE ディテールホームの見学会・イベント情報
-
新潟市西区|5.16(土)~17(日)
![新潟市西区|道がつむぐ家|モデルハウス見学会]()
新潟市西区|道がつむぐ家|モデルハウス見学会
日程:2026.5.16(土)~17(日) 10:00〜18:00
会場:新潟市西区坂井 -
新発田市|5.16(土)~17(日)
![■当日予約歓迎■新発田市|平屋のように暮らす、中庭と回遊動線のあるナチュラルレジデンス|モデルハウス見学会【予約制】]()
■当日予約歓迎■新発田市|平屋のように暮らす、中庭と回遊動線のあるナチュラルレジデンス|モデルハウス見学会【予約制】
日程:2026.5.16(土)~17(日) 10:00〜18:00
会場:新発田市西園町 -
新発田市|5.16(土)~17(日)
![■当日予約歓迎■≪最終見学会≫新発田市御幸町モデルハウス|灯りが描くホテルライク空間【予約制】]()
■当日予約歓迎■≪最終見学会≫新発田市御幸町モデルハウス|灯りが描くホテルライク空間【予約制】
日程:2026.5.16(土)~17(日) 10:00〜18:00
会場:新発田市御幸町 -
見附市|5.16(土)~17(日)
![■当日予約歓迎■見附市|開放感と時短。二つのゆとりが織りなす贅沢な日常|完成見学会【予約制】]()
■当日予約歓迎■見附市|開放感と時短。二つのゆとりが織りなす贅沢な日常|完成見学会【予約制】
日程:2026.5.16(土)~17(日) 10:00〜18:00
会場:見附市緑町 -
見附市|5.16(土)~17(日)
![見附市|光とプライバシーを両立する「中庭」のある平屋生活|モデルハウス見学会【予約制】]()
見附市|光とプライバシーを両立する「中庭」のある平屋生活|モデルハウス見学会【予約制】
日程:2026.5.16(土)~17(日) 10:00〜18:00
会場:見附市上新田町 -
新潟市中央区|5.23(土)~24(日)
![新潟市中央区|洞窟アプローチから、光差す吹き抜けダイニングへ|モデルハウス見学会]()
新潟市中央区|洞窟アプローチから、光差す吹き抜けダイニングへ|モデルハウス見学会
日程:2026.5.23(土)~24(日) 10:00〜18:00
会場:新潟市中央区美の里 -
新発田市|5.23(土)~24(日)
![新発田市|吹き抜けの光がつなぐ、家族が集う住まい|完成見学会【予約制】]()
新発田市|吹き抜けの光がつなぐ、家族が集う住まい|完成見学会【予約制】
日程:2026.5.23(土)~24(日) 10:00〜18:00
会場:新発田市東新町 -
三条市|5.23(土)~24(日)
![三条市|上質な家具と紡ぐ、周辺環境を選ばないカーテンレスな暮らし|モデルハウス見学会【予約制】]()
三条市|上質な家具と紡ぐ、周辺環境を選ばないカーテンレスな暮らし|モデルハウス見学会【予約制】
日程:2026.5.23(土)~24(日) 10:00〜18:00
会場:三条市石上 -
長岡市|5.23(土)~24(日)
![≪グランドオープン≫長岡市大島新町モデルハウス|上質な素材美を愉しむ、ガレージとインナーテラスのある邸宅【予約制】]()
≪グランドオープン≫長岡市大島新町モデルハウス|上質な素材美を愉しむ、ガレージとインナーテラスのある邸宅【予約制】
日程:2026.5.23(土)~24(日) 10:00〜18:00
会場:長岡市大島新町 -
柏崎市|5.23(土)~24(日)
![柏崎市|家族を見守るLDK、毎日がラクになるシンプルモダンの家|完成見学会【予約制】]()
柏崎市|家族を見守るLDK、毎日がラクになるシンプルモダンの家|完成見学会【予約制】
日程:2026.5.23(土)~24(日) 10:00〜18:00
会場:柏崎市半田

