新潟市中央区美の里
販売価格(税込) 家具付き 5,460万円 → 5,360万円
- 所在地
- 新潟市中央区美の里194番10
- 交通
- JR信越本線「越後石山」:徒歩33分
JR信越本線「亀田」:徒歩歩45分
JR越後線「新潟」:徒歩歩49分
- 学区
- 新潟市立山潟小学校:徒歩16分(1220m)
新潟市立山潟中学校:徒歩16分(1220m)
- 地目
- 宅地
- 用途地域
- 第一種住居地域
- 建ぺい率
- 60%
- 容積率
- 200%
- 道路
- 新潟市道南7-47号線 幅員6m
開発道路(私道)幅員6~11m
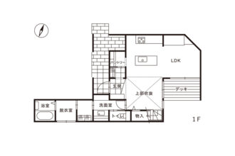
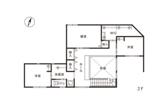
- 間取り
- 3LDK
- 土地面積
- 146.25㎡(44.2坪)
- 建物面積
- 112.83㎡(34.1坪)
- 完成時期
- 2024年6月
- 構造
- 木造2階建て
- 電力
- 東北電力
- 水道
- 公営水道、本下水
- ガス
- 都市ガス
- 取引態様
- 所有権
- 備考
- 旧価格公表日:2025年5月3日 値下げ日:2026年1月29日
- 担当者から一言
- 鳥屋野南部開発区域に隣接し、新潟駅へのアクセスやスポーツなど大型イベント施設、大型商業施設圏内となり、マンションを含めた駅南エリアにて戸建てをお探しの方には最適立地。
周辺データ
-
イオンモール新潟亀田インター:徒歩20分(1540m)
-
スーパーセンタームサシ新潟店:徒歩8分(600m)
-
美の里なかよし公園:徒歩3分(170m)
-
ウエルシア新潟弁天橋通店:徒歩13分(1030m)
-
ケーズデンキ新潟南店:徒歩8分(610m)
-
新潟市立山潟小学校:徒歩16分(1220m)
建売住宅 来場予約フォーム
OPEN HOUSE ディテールホームの見学会・イベント情報
-
新潟市西区|4.18(土)~19(日)
![■当日予約歓迎■新潟市西区|情緒豊かな暮らしを実現する大開口がある家|完成見学会【予約制】]()
■当日予約歓迎■新潟市西区|情緒豊かな暮らしを実現する大開口がある家|完成見学会【予約制】
日程:2026.4.18(土)~19(日) 10:00〜18:00
会場:新潟市西区新通 -
見附市|4.18(土)~19(日)
![■当日予約歓迎■見附市|無駄ゼロ動線×自然素材で豊かな暮らし|完成見学会【予約制】]()
■当日予約歓迎■見附市|無駄ゼロ動線×自然素材で豊かな暮らし|完成見学会【予約制】
日程:2026.4.18(土)~19(日) 10:00〜18:00
会場:見附市本所 -
上越市|4.18(土)~19(日)
![■当日予約歓迎■上越市|中庭をコの字で囲む、パブリックとプライベートを両立する暮らし|モデルハウス見学会【予約制】]()
■当日予約歓迎■上越市|中庭をコの字で囲む、パブリックとプライベートを両立する暮らし|モデルハウス見学会【予約制】
日程:2026.4.18(土)~19(日) 10:00〜18:00
会場:上越市大和 -
新潟市中央区|4.25(土)~26(日)
![新潟市中央区|洞窟アプローチから、光差す吹き抜けダイニングへ|モデルハウス見学会]()
新潟市中央区|洞窟アプローチから、光差す吹き抜けダイニングへ|モデルハウス見学会
日程:2026.4.25(土)~26(日) 10:00〜18:00
会場:新潟市中央区美の里 -
新発田市|4.25(土)~26(日)
![新発田市|トータルコーディネートされた、上質でカーテンのいらない暮らし|モデルハウス見学会【予約制】]()
新発田市|トータルコーディネートされた、上質でカーテンのいらない暮らし|モデルハウス見学会【予約制】
日程:2026.4.25(土)~26(日) 10:00〜18:00
会場:新発田市住吉町 -
燕市|4.25(土)~26(日)
![燕市|夜風と一杯を愉しむ、プライベートテラスのある家|完成見学会【予約制】]()
燕市|夜風と一杯を愉しむ、プライベートテラスのある家|完成見学会【予約制】
日程:2026.4.25(土)13:00~18:00、26(日) 10:00〜18:00
会場:燕市小池 -
長岡市|5.2(土)~3(日)
![≪プレオープン≫長岡市大島新町モデルハウス|上質な素材美を愉しむ、ガレージとインナーテラスのある邸宅【予約制】]()
≪プレオープン≫長岡市大島新町モデルハウス|上質な素材美を愉しむ、ガレージとインナーテラスのある邸宅【予約制】
日程:2026.5.2(土)~3(日) 10:00〜18:00
会場:長岡市大島新町 -
長岡市|5.2(土)~3(日)
![長岡市|1階完結で暮らす、開放感のあるコンパクトSEの家|完成見学会【予約制】]()
長岡市|1階完結で暮らす、開放感のあるコンパクトSEの家|完成見学会【予約制】
日程:2026.5.2(土)~3(日) 10:00〜18:00
会場:長岡市関原町 -
新潟市西区|5.9(土)~10(日)
![新潟市西区|アウターリビングのある1.5階建ての家|モデルハウス見学会]()
新潟市西区|アウターリビングのある1.5階建ての家|モデルハウス見学会
日程:2026.5.9(土)~10(日) 10:00〜18:00
会場:新潟市西区大野町 -
新発田市|5.9(土)~10(日)
![新発田市|平屋のように暮らす、中庭と回遊動線のあるナチュラルレジデンス|モデルハウス見学会【予約制】]()
新発田市|平屋のように暮らす、中庭と回遊動線のあるナチュラルレジデンス|モデルハウス見学会【予約制】
日程:2026.5.9(土)~10(日) 10:00〜18:00
会場:新発田市西園町

