スタッフブログ
STAFF BLOG2019.09.27 / 斎藤
まいほーむ part2
こんにちは!新潟支店の斎藤です♪
いやぁ…アレですね。
こしいぶき、コシヒカリ、稲刈りも終わり。
秋刀魚をお供に、新米パーティーも終え。
昼間の暖かさで調子に乗って、ランニング姿で就寝して朝方凍えそうで起きる。
先日、カミさんが衣替えしてくれておりました。
ありがとう。
いやぁ…秋になりましたね。
皆様は秋の訪れ。何で感じますか?
さて、斎藤家のしあわせ家づくり計画のお話を。
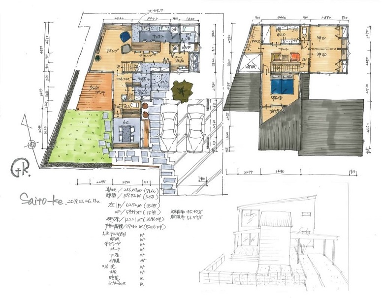
今回は、確定の一個前のプランをお見せします♪
(実際のプラン公開はまた次の斎藤ブログでご案内致します)
・家族構成 /4人(+1人)
・敷地面積 /70坪
・延べ床面積/37坪
5LDK(和室・予備室・寝室・子供部屋2室)
屋内空間のポイントにしたのは
①壁付けキッチン(モールテックス仕上)
②大型ダイニングテーブル
③ホール洗面
④シューズクローク動線
⑤パントリー追加(この間取りから変更)
⑥廊下一体和室 追加(この間取りから変更)
↓ここから、またどう間取りが変わったかは乞うご期待!

屋外空間でポイントにしたのは、
①おいでおいで玄関(導くアプローチ動線計画)
②外壁素材感
③中に入って外を感じる開放感。
④四季を感じれるつくり。
『コイツは何を言っているんだ』と思われるかもしれませんが、
きっとご覧頂いたらその意図は少しわかって頂けるかと思います♪
↓その外観はこちら(外観データは完成外観です)

そして
ついに始まった工事。
①8月 地縄張り
草ボーボーの状態から、義父に除草剤を撒いてもらい、高張さんに草刈りしてもらい、
近所のおっちゃんに応援してもらい、お兄さんにお茶の差し入れをもらい。
汗だっくだくになりながら、建物の配置をロープで表しました。

②8月 地鎮祭
吉日。神様二柱をお招き申し上げ、
これからの工事の無事と、家族の多幸を祈念して、土地のお清め儀式。
最近はこういった式をされない建築会社さんもあるそうですが、やはり大事だなぁと。
家族にも参列してもらい、『これから持ち家を建てて、ここで過ごしていきます』と
決意表明をしつつ、身の引き締まる思いの私なのでした。

③仮設工事
まずは近隣への配慮と、第三者への危険防止措置を。
いつも見慣れた工事ですが、ワクワクします。

④改良工事(写真は撮れてません)
⑤やり方・掘削工事&基礎工事スタート
まずは基礎の通り(配置)をしっかりと出し、
基礎ベースを作るため地盤の掘削を行います♪

⑥基礎のベーススラブ下
地の砕石転圧(防湿)(捨てコンクリート)工事が完了♪
これからする基礎工事の大事な下準備が終わりました。
※カミさんもワクワクして現場確認 #嫁グラフィー(笑)

⑦基礎配筋検査合格・ベース打設完了
第三者機関による配筋検査の合格を受け、
べた基礎のベースコンクリートが打設されました。
施工が綺麗!ありがとうございます!

⑧基礎立ち上がり打設後の脱枠完了。
躯体工事の基礎が、ほぼ完成しました。
これから残りのポーチ土間を打設したり、
外周の配管工事をして、10月にはいよいよ建前です!

すいません!ただの斎藤家の進捗ご報告になってしまいましたが、
以上、簡単ではございますが
基礎工事の流れ解説でした♪
最後に、来週末の新潟市北区の見学会のご案内♪
新潟市北区|中庭のあるコの字型住宅|完成見学会【完全予約制】
こだわりが彩った住まい!素敵に出来上がりました♪
完成写真はギリギリで恐れ入りますが3日にUP予定!
現地に着いてからお帰りになるまでに
少なくとも7回。
『わぁ♪』と言ってしまうことをお約束します。
まずはご予約をお待ちしております。
では、また。